Onder bod:Oude Terpweg 7, 8891 GE Midsland - Foto
Onder bod
+51

Oude Terpweg 7 8891 GE Midsland € 795.000,- k.k.

  • Woonhuis
  • 6 kamers
  • 5 slaapkamers
  • 2 badkamers
  • Bouwjaar 1991
  • 475 m² perceeloppervlakte
  • 136 m² gebruiksoppervlakte
  • A Energielabel A

Beschrijving

Te koop:

Ruime, goed onderhouden vrijstaande woning met inpandige garage, gelegen in Midsland op Terschelling. Een belangrijk pluspunt is de royale slaapkamer met eigen badkamer op de begane grond. Hierdoor is de woning comfortabel en levensloopbestendig, zonder dat traplopen nodig is. Ook is deze ruimte zeer geschikt voor gasten die minder mobiel zijn.

Voor gezinnen biedt deze kamer daarnaast mogelijkheden als speelkamer of werkruimte. De woning beschikt over een lichte L-vormige woonkamer met halfopen keuken, drie slaapkamers op de eerste verdieping, een extra kamer die is ingericht als inloopkast en een bergzolder die bereikbaar is via een vlizotrap. De inpandige garage met eigen oprit biedt ruimte voor een auto, opslag en eventueel een werkplek.

De woning ligt aan de rand van het centrum van Midsland, op korte loopafstand van winkels, de bibliotheek, scholen en het medisch centrum. Bovendien is de woning volledig geïsoleerd en voldoet deze aan de eisen van modern en comfortabel wonen.

Indeling

De entree biedt toegang tot een ruime hal met toiletruimte, meterkast en de vaste trap naar de eerste verdieping. Vanuit de hal bereik je de lichte woonkamer met open keuken. De woonkamer is voorzien van een schuifpui die direct toegang geeft tot het terras en de op het westen gelegen tuin.

Via de hal kom je ook in de slaapkamer op de begane grond, die beschikt over een eigen doucheruimte. Vanuit de keuken is er toegang tot de bijkeuken, die aansluit op de inpandige garage. Zowel via de bijkeuken als via de garage is de achtertuin eenvoudig bereikbaar.

Woonkamer/eetgedeelte, afmeting ca. 4.00 x 9.65 m.
Keuken, afmeting ca. 3.55 x 2.40 m.
Hal, afmeting ca. 3.50 x 1.85 / 1.50 x 0.85 m.
Slaapkamer (1), afmeting ca. 3.47 x 3.74 m. (met aansluitend eigen doucheruimte)
Bijkeuken, afmeting 2.05 x 2.90 m. (voorzien van aansluiting was-/droogmachine)
Garage, afmeting 3.35 x 7.55 m. / 2.10 x 2.00 m.

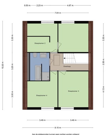
Eerste verdieping

De overloop biedt toegang tot de badkamer, drie ruime slaapkamers en een extra kamer die momenteel is ingericht als inloopkast. De moderne badkamer is compleet uitgerust met een ligbad, toilet, inloopdouche en een wastafelmeubel.

Via de overloop is met een vlizotrap de ruime zolder bereikbaar, met een stahoogte van circa 2,10 meter.

Overloop, afmeting ca. 2.09 x 3.70 m
Slaapkamer (2), afmeting ca. 3.50 x 4.10/3.00 m.
Slaapkamer (3), afmeting ca. 3.50 x 4.10 m.
Slaapkamer (4), afmeting ca. 3.15 x 3.30 m.
Extra kamer, ingericht als inloopkast, afmeting ca. 3.80 x 3.30 m.
Badkamer, afmeting 2.67 x 3.10 m. (voorzien van royale dakkapel)

* Bovenstaande afmetingen zijn gemeten op schothoogte 0.75 m.

Tweede verdieping

Ruime, volledig beloopbare bergzolder met een nokhoogte van ca. 2.10 meter.

Tuin

De woning aan de Oude Terpweg 7 staat op een perceel van 475 m² en beschikt over een eigen oprit naar de garage en een tuin aan de voorzijde.

Aan de achterzijde bevindt zich een sfeervol aangelegde tuin met een ruim terras, gunstig gelegen op het westen. De gezellige veranda achter in de tuin biedt volop ruimte en privacy om te genieten van lange, zomerse avonden!

Bijzonderheden

* Garage met eigen oprit en voorzien een elektrische roldeur.
* Slaapkamer met badkamer op de begane grond, dus levensloopbestendig.
* De eerste verdieping is voorzien van een airco.
* Drie slaapkamers op de verdieping en een inloopkast.
* Op de zuidzijde van het dak van de woning zijn 15 zonnepanelen geplaatst.
* Volledig geïsoleerd

Bezichtigingen op afspraak.
Aanvaarding op korte termijn is mogelijk, in onderling overleg met verkoper.

Biedingen dienen uiterlijk donderdag 02-04-2026 vóór 12.00 uur te worden uitgebracht via het inschrijfformulier van Eerlijk Bieden.
Het inschrijfformulier is op aanvraag verkrijgbaar via verkopend makelaar.
Verkoper behoudt zich het recht van gunning voor.

Kaart

Kenmerken

Overdracht

Referentienummer
92
Vraagprijs
€ 795.000,- k.k.
Status
Onder bod
Aanvaarding
In overleg
Aangeboden sinds
Vrijdag 20 maart 2026
Laatste wijziging
Donderdag 2 april 2026

Bouw

Type object
Woonhuis, eengezinswoning, vrijstaande woning
Soort bouw
Bestaande bouw
Bouwperiode
1991
Dakbedekking
Bitumen
Dakpannen
Type dak
Zadeldak
Isolatievormen
Volledig geïsoleerd

Oppervlaktes en inhoud

Perceeloppervlakte
475 m²
Woonoppervlakte
136 m²
Inhoud
580 m³
Oppervlakte overige inpandige ruimten
40 m²
Oppervlakte externe bergruimte
31 m²

Indeling

Aantal bouwlagen
2
Aantal kamers
6 (waarvan 5 slaapkamers)
Aantal badkamers
2 (en 1 apart toilet)

Energieverbruik

Energielabel
A

CV ketel

CV ketel
Nefit Proline
Warmtebron
Gas
Bouwjaar
2019
Combiketel
Ja
Eigendom
Eigendom

Uitrusting

Warm water
CV-ketel
Verwarmingssysteem
Centrale verwarming
Ventilatie methode
Mechanische ventilatie
Badkamervoorzieningen Badkamer 1
Inloopdouche
Vloerverwarming
Wastafelmeubel
Badkamervoorzieningen Badkamer 2
Inloopdouche
Ligbad
Toilet
Wastafelmeubel
Heeft airco
Ja
Glasvezelaansluiting aanwezig
Ja
Beschikt over een internetverbinding
Ja
Heeft een dakraam
Ja
Heeft een schuifpui
Ja
Heeft zonwering
Ja
Heeft zonnepanelen
Ja
Heeft ventilatie
Ja

Kadastrale gegevens

Kadastrale aanduiding
Terschelling H 2755
Perceeloppervlakte
475 m²
Omvang
Geheel perceel
Eigendomsituatie
Eigen grond